- Features
- Highlights:
- Induktionskogesektion, med intelligent induktion
- 10 effekttrin
- Connex for fjernbetjening af Connex-emhætter
- 3 "Keep Warm" function - Smeltefunktion, Skånsom tilberedning, Simretilstand
- Brofunktion; i begge sider (22x36 cm)
- STOP-AND-GO funktion
- Gryderegistrering og størrelsestilpasning
- Automatisk zoneaktiveringssystem
- Hukommelsen ved sluk
- Opkogningsautomatik
- Sprød friture
- Power booster på alle zoner
- Power Management: 4,5 kW
- Cooking Flow
- Minutur med automatisk sluk
- Sikkerhedsafbryder
- Restvarmeindikator
- Børnesikring
- 7 års garanti ved registrering af produktet
- Highlights:
- NAV Vare
- Varenr.: 6018
- NAV Vare
- EAN: 8020283058194
- Salg
- Sortiment: Kitchen Design Collection
- Main
- Brand: Elica cooking
- Finsh
- Finish: Sort glas, lige kant
- Dimensioner
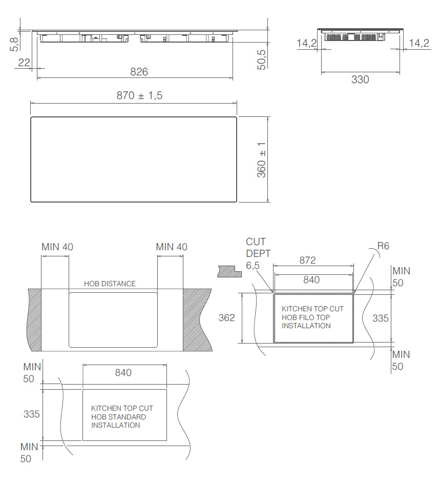
- Produkt (BxDxH): 870 x 360 x 56,3 mm
- Dimensioner
- Indbygning (BxDxH): 840 x 335 x 56,3 mm
- Text
- Ekstra bred 87 cm induktionskogeplade med fem kogezoner og bridge-funktion. Perfekt til omfattende madlavning i et stilfuldt sort design.
- Zone
- Antal zoner: 4 stk.
- Betjening
- Betjening (kogeplade): Multi slidertouch control med light guide og talindikation
- Betjening
- Effekttrin: 10 trin
- Vare
- Børnesikring: Ja
- Vare
- Tilslutningseffekt: 7,2 kW

Brofunktion; i begge sider (22x36 cm)
I begge sider kan forreste zone og bagerste zone kobles sammen til én kogezone på 22x36 cm

STOP-AND-GO funktion
STOP-AND-GO funktionen gør det mere sikkert at lave mad. Når du får uventet besøg er alt hvad der skal til, en let berøring på STOP-AND-GO funktionn og alle de aktiverede kogezoner slukkes. Når du vender tilbage til køkkenet skal du blot røre samme knap igen og alle kogezoner tændes ved den tidligere valgte indstilling.

Gryderegistrering og størrelsestilpasning
Alle kogezonerne med induktion har automatisk størrelsestilpasning og gryderegistrering. Zonerne tilpasses automatisk ved, at grydens/pandens størrelse aflæses og induktionen vil opvarme i overensstemmelse med den størrelse, der er aflæst. Nogle kogesektioner har det mere avancerede "automatisk zone-aktiveringssystem ".

Automatisk zoneaktiveringssystem
Zonen aflæser om der er placeret en gryde/pande på den, og betjeningspanelet aktiveres automatisk til denne eksakte zone. Flyttes enheden til en anden kogezone, aktiveres denne automatisk og tidligere benyttede zone slukkes automatisk.
Hukommelsen ved sluk
Du skal ikke blive bekymret, hvis ovnen utilsigtet er blevet slukket under tilberedningen. Det elektroniske system husker hvilket tidspunkt programmet er slukket på. Du skal blot tænde ovnen igen og programmet vil fortsætte hvor det slap.

Sikkerhedsafbryder
En ekstra sikkerhedsforanstaltning sikrer at produktet - hvis den er tændt - automatisk slukker af sig selv efter et vist antal timer.

Restvarmeindikator
Varmeindikatoren viser hvilke kogezoner, der er varme. Så ved du ikke alene hvornår du skal være forsigtig, du kan også bruge den overskydende varme til at holde maden varm og på samme tid spare energi.

Børnesikring
Med børnesikringen slået til, er det ikke muligt at komme til at tænde for/åbne hvidevaren ved et uheld.

7 års garanti ved registrering af produktet
På dette produkt tilbydes 7 års garanti. Registrer dit produkt inden 90 dage og få den ekstra lange garanti
Varenr.: 6018
Ratio 874 Plus BL

Induktionskogeplade - 4 zoner - Sort - Bredde 870 mm
19.995,00 kr.
- Fokuspunkter
- Produkt (BxDxH) 870 x 360 x 56,3 mm
- Antal zoner 4 stk.
- Betjening (kogeplade) Multi slidertouch control med light guide og talindikation
- Effekttrin 10 trin
-
- Minimal brug af grafik
- 4 zoner på én række
- Ekstra stor zone på 26,5 cm
- Brofunktion
- 7 års garanti ved registrering af produktet








